Flüchtlingswohnheime Reutlingen
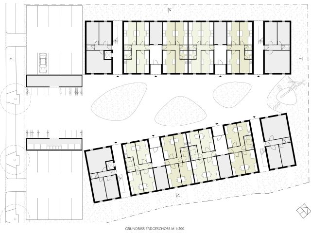
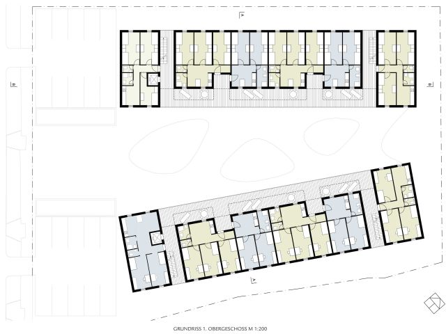
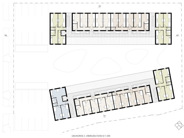
Die Gebäude sind in Holzelementbauweise gefertigt. Die Wohneinheiten in den Obergeschossen sind durch großzügige Laubengänge erschlossen.
Status | Art der Bewohner |
Anzahl der Bewohner | Moduleinheiten |
Baukosten (Euro/m²) | Bauverfahren |
Land | Wohnfläche pro Person (m²/Person) |
Architekt | Auftraggeber |
Ausführende Firma |
Der Entwurf ist mit besonderem Blick auf die Nutzungsflexibilität entwickelt worden. Die Frage war, wie das zukünftige Gebäude auf eine sich verändernde Anzahl von Hilfe suchender Flüchtlingen reagieren kann. Die Möglichkeit eines temporären Gebäudes, welches bei schwindender Nachfrage wieder demontiert wird, wurde schnell ausgeschlossen. Gründe hierfür sind die geringere Akzeptanz der Nachbarschaft und des Nutzers bei der klassischen, temporären Containerlösung. Der Entwurf löst dieses Problem durch die mitgedachte Umnutzbarkeit in gewöhnliche Mietwohnungen.
Die langfristige Planung und Berücksichtigung des Standards für geförderten Mietwohnungsbau ermöglicht eine hohe Qualität, auch für das Flüchtlingswohnen, ohne wirtschaftlich unvernünftig zu handeln.
Über außenliegende Treppen werden Terrassen erschlossen, von denen direkte Eingänge in die Wohneinheiten bestehen. Der Baukörper lässt sich in unterschiedlichen Längen realisieren, durch Kopfbauten abschließen, In Gruppen zueinander positionieren oder als Solitär ausbilden.
(Auszug Erläuterungsbericht)







