SANIERUNG DENKMALGESCHÜTZTES WOHNGEBÄUDE, MÜNCHEN
Das sanierte, denkmalgeschützte Gebäude, in welchem für 102 Asylbewerber Wohnraum geschaffen wurde, befindet sich im Stadtzentrum von München.
Status | Art der Bewohner |
Anzahl der Bewohner | Bauverfahren |
Bauverfahren (Detail) | Land |
Wohnfläche pro Person (m²/Person) | Architekt |
Auftraggeber | Ausführende Firma |
Das Wohnhaus in München Haidhausen wurde bereits als Gemeinschaftsunterkunft für die Unterbringung und Betreuung von Flüchtlingen genutzt, als der Betreiber, die Regierung von Oberbayern, 2014 mit dem Wunsch an den Gebäudeeigentümer heran trat, die Anzahl der Bewohner zu erhöhen und in dem Haus zusätzliche Flächen zu erschließen.
Das Wohnhaus liegt im Münchner Stadtteil Haidhausen am östlichen Isarhochufer.
Hier wohnt die klassische Mittelschicht, die Wohnbevölkerung ist gemischt, die Atmosphäre tolerant. In dieser Nachbarschaft finden nun nach der Sanierung des um 1900 erbauten und denkmalgeschützten Eckgebäudes 102 Asylbewerber Unterkunft.
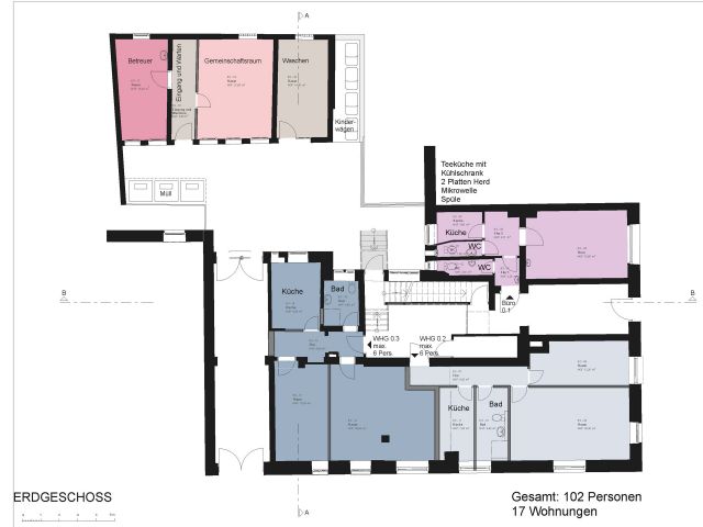
Zur Erschließung neuer Flächen wurden in dem Gebäude ein bis dato im Erdgeschoss vorhandener Waschsalon in Wohnraum umgenutzt und umgebaut. Die Wohnungen in den oberen Geschossen wurden mit kleinen Eingriffen zum Teil neu strukturiert. Hierbei war das Konzept, die Bewohner in die bestehende Struktur des Wohnhauses zu integrieren.
Entstanden sind also keine wohnheimähnlichen Strukturen, sondern 17 separate 2-3-Zimmer-Wohnungen mit Bad und eigener Küche, in der die selbstständige Zubereitung von Speisen möglich ist. Pro Wohnung gibt es eine maximale Belegungszahl von sechs Personen, unter Berücksichtigung der Leitlinie zur Unterbringung von Asylbewerbern, die pro Person mindestens 7 qm Wohn- und Schlaffläche vorgibt. Die Unterkunft ist von Familien und Einzelpersonen verschiedener Nationalität belegt.
(Auszug Erläuterungsbericht)


