UMBAU EINES DENKMALGESCHÜTZTEN GEBÄUDES, MÜNCHEN
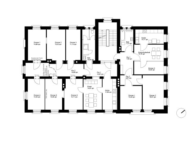
In einem denkmalgeschützten Gebäude, das 1904 als Bahntorhausdes Schlacht- und Viehhofs geplant wurde, entstanden im April 2016 2 Wohnungen für die Unterbringung von 9 Flüchtlingen.
Status | Art der Bewohner |
Anzahl der Bewohner | Moduleinheiten |
Bauverfahren | Bauverfahren (Detail) |
Land | Wohnfläche pro Person (m²/Person) |
Architekt | Auftraggeber |
Das denkmalgeschützte Gebäude stammt aus dem Jahr 1904 und wurde als Bahntorhaus des Schlacht- und Viehhofs vom Stadtbauamt geplant. Ursprünglich enthielt es Aufenthalts- und Schlafräume für Arbeiter und Zugbegleiter im Erdgeschoss und Wohnungen im Obergeschoss. Mit der aktuellen Baumaßnahme wurden 2 Wohnungen zu einer großen Wohneinheit zusammengelegt. Zusammen mit einer weiteren Wohnung steht nun das gesamte 1. Obergeschoß des Gebäudes zur Unterbringung von Flüchtlingen zur Verfügung. Der Standard des Ausbaus ist einfach, der Aufgabe angemessen. Es waren insbesondere Vorgaben des vorbeugenden Brandschutzes sowie des Denkmalpflege zur berücksichtigen.
(Auszug Erläuterungsbericht)


