StadtBauKasten, Kronberg
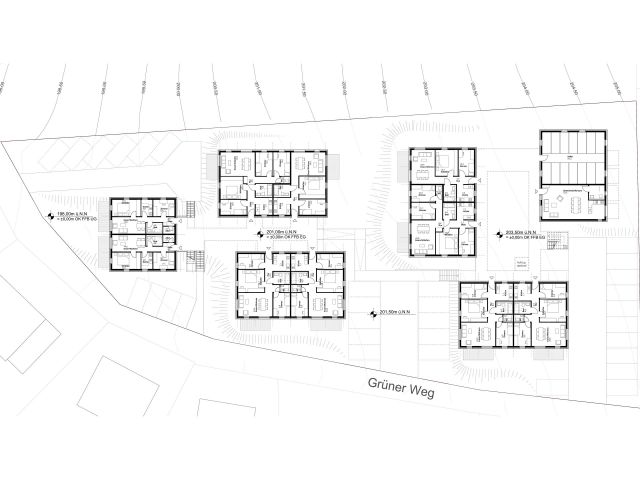
Built according to the “StadtBauKasten” system, featuring single modules or axial patterns. One-to six-bedroom apartments for up to 40 refugees.
Status | Type of residents |
Number of residents | Modular units |
Construction costs (Euro/m²) | Building method |
Country | Living space per person (m²/person) |
Architect | Commissioned by |
The “StadtBauKasten” can reflect the needs of a wide variety of residential types—from 1-room apartments (e.g., for students or refugees) up to 5-room family apartments and shared apartments for refugees or seniors. The structures are pre-planned to be transitioned, at a later date, from compact refugee apartments into apartments that meet social housing standards. The apartments are grouped together in compact structures; multiple buildings are connected via shared corridors and grouped into ring-shaped or linear ensembles.
(Excerpt from project description)



