OFFICE BUILDING CONVERSION INTO APARTMENTS FOR REFUGEES, Munich
An empty eight-story office building was converted into a residential building for refugees and locals in need of accommodation. Due to the declining number of refugees in Germany, the building will be occupied predominantly by locals in need of housing. The combination of different forms of housing responds to the different needs of the residents.
Status | Type of residents |
Number of residents | Modular units |
Building method | Building (Detail) |
Country | Living space per person (m²/person) |
Architect | Commissioned by |
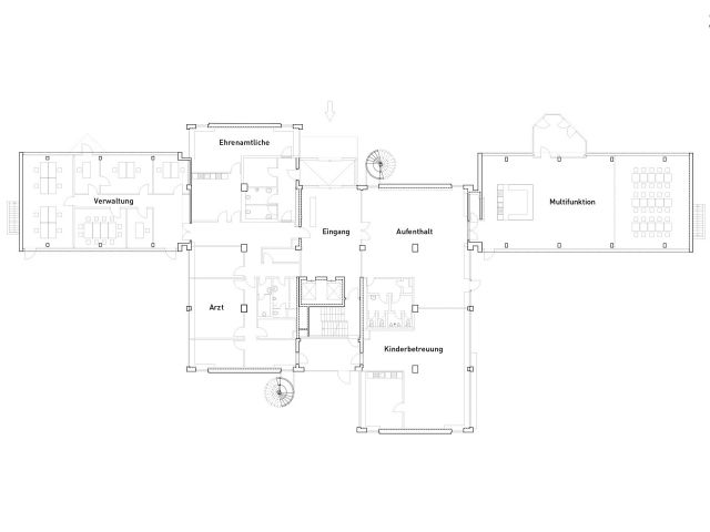
An 8-story office building in Munich is being converted into a residential building to receive refugees. The building’s ground floor will be used as a common area with lounges, meeting rooms, and an administrative area. The structure of the upper floors enables the floor space to be divided into individual apartments with private kitchens and sanitary areas. This ensures private and individual living and therefore decent accommodations for the residents. The mix of different types of apartments within the building—from mini-apartments to family homes and larger shared apartments—produces a variety of living situations, making the building responsive to the different needs of the residents. A sustainable, flexible, and continuously evolving residential use of the building is possible; it can also serve as an integration home by being mixed with social or student housing.
(Excerpt from project description)





