Palotti Haus, STUTTGART
Das Palotti-Haus ist Teil eines gemischten Wohnquartiers mit insgesamt acht Gebäuden, in dem Wohnraum für Asylsuchende und Flüchtlinge mit Bleiberecht entstehen soll.
Status | Art der Bewohner |
Anzahl der Bewohner | Moduleinheiten |
Bauverfahren | Land |
Architekt | Auftraggeber |
Postmigrantische Stadtentwicklung
Bei der Unterbringung von Flüchtlingen folgt die Stadt Stuttgart einem Konzept, das sie den „Stuttgarter Weg“ nennt: dezentrale Unterbringung in den Stadtbezirken, nie mehr als 250 Menschen an einem Ort, Betreuung durch freie Träger, ein Betreuer für 68 Bewohner, Hilfe durch Ehrenamtliche. Ende November wohnten in Stuttgart 6.231 Flüchtlinge in 94 Unterkünften in 21 Stadtbezirken.
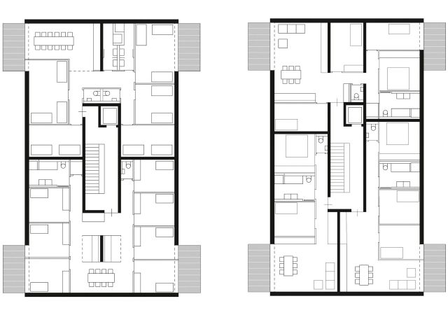
Der Idee, Asylbewerber in einzelnen Wohngebieten unterzubringen, folgt auch das Siedlungswerk, ein Wohnungsbauunternehmen mit kirchlichem Hintergrund, das in Baden-Württemberg pro Jahr 400 bis 500 Wohneinheiten baut. Seit vielen Jahren entwickelt das Siedlungswerk, dessen Haupteigner das Bistum Rottenburg-Stuttgart und die Landesbank Baden-Württemberg sind, laut eigener Aussage Wohnquartiere, in denen alle Kreise der Gesellschaft und alle Altersgruppen ihren Platz finden sollen. Im Stuttgarter Stadtbezirk Birkach, dort, wo derzeit noch die ungenutzte Kirche Sankt Vinzenz Pallotti aus den sechziger Jahren steht, ist ein gemischtes Wohnquartier geplant, in dem Wohnraum für Asylsuchende und Flüchtlinge mit Bleiberecht erstmals von Beginn an mit vorgesehen ist. Insgesamt sollen auf einem 8.500 m² großen Grundstück 8 Gebäude entstehen: 6 mit insgesamt 64 Eigentumswohnungen, ein dreigeschossiges für eine erweiterte Kindertagesstätte und das so genannte Palotti-Haus mit Wohnungen für 60 Asylsuchende, Flüchtlinge mit Bleiberecht und Studenten. Schwarz.Jacobi Architekten gewannen den im Juli entschiedenen Wettbewerb unter anderem mit dem Vorschlag, das Pallotti-Haus architektonisch wie die anderen Bauten zu behandeln, sowohl was seine Fassadengestaltung betrifft, als auch seine städtebauliche Lage – gleichberechtigt am Hauptweg, der das Quartier durchzieht. Das Haus ist als Wohnhaus konzipiert, nicht als Wohnheim. 74 Menschen können in Wohngruppen (1. bis 3. Obergeschoss) und Sozialwohnungen (4. und Dachgeschoss) wohnen. Sollte der Bedarf an Wohnungen für Asylsuchende in ein paar Jahren nachlassen, können die Wohnungen für weniger Bewohner in einer Einheit umgebaut werden. Aufgabe des Pallotti-Hauses ist es, die soziale Funktion im Quartier zu fördern bzw. zu übernehmen. Im Erdgeschoss ist dafür ein Gemeinschaftsraum vorgesehen, der auch für Kitafeste und ähnliches genutzt werden könnte.
Parallel dazu entwickelt das Siedlungswerk in Neuhausen auf den Fildern ein weiteres Wohngebiet für rund 800 Bewohner. Neben Baugrundstücken für Eigenheime und Reihenhäuser und 155 Eigentumswohnungen soll das „Wohnen an den Akademiegärten“ etwa 35 Mietwohnungen bieten, ergänzt durch Wohngruppenmodelle sowie ein integratives Wohnmodell für Flüchtlinge mit Gemeinschaftsraum für das gesamte Quartier.
Text: Friederike Meyer,
aus: Stadtbauwelt 48.2015




