ASYLUM SEEKERS CENTRE, TER APEL (NL)
2000 asylum seekers will be accommodated in 258 residential buildings. Also planned are offices, a health center, recreation buildings, and a school.
Status | Type of residents |
Number of residents | Modular units |
Building method | Building (Detail) |
Living space per person (m²/person) | Architect |
Commissioned by | Construction firm |
Camp architecture for 30 years
For anyone seeking asylum in the Netherlands there is no avoiding Ter Apel. Refugees with very diverse statuses – ranging from first-time applicants to asylum seekers whose application was rejected in the last instance – are accommodated in the central reception centre at a former NATO military base on the border to Lower Saxony. From Ter Apel the residents are distributed to other quarters.
In summer 2014 the Dutch COA (Central Agency for the Reception of Asylum Seekers) launched a competition for the redesign of its “capital city”. It was won by De Zwarte Hond Architects together with BAM Building Contractors. The existing centre is to be extended and newly structured on a site of almost ten hectares by 2017. The first phase was completed in November. Plans call for 2,000 asylum seekers to be accommodated in 258 residential buildings, in addition to offices, a health centre, leisure facilitiesand a school.
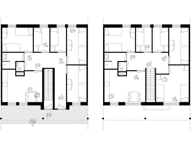
The agency had originally proposed eight enclosed courtyards, a cluster formation for social control. The architects reacted to this requirement with Dutch pragmatism and a high degree of sensitivity to the needs of the residents: they opened the courtyards to a central green zone in which all service facilities were accommodated in pavilions. The courtyards were reduced from 50 to 30 metres in width, a size the architects knew from other projects to be ideal for neighbourhood contacts. In order to promote communication, launderettes and kiosks at which the residents can collect utensils such as towels and toothbrushes are located at the boundary between the courtyards and common open space. “We drew an analogy to a camping site,” says project manager Martine Drijftholt. The message: if you have to spend the whole day waiting, why not make it as pleasant as possible?
The human scale was introduced to the mass accommodation in city planning terms right down to the last detail: 250 people now live around a courtyard; 16 inhabitants share a house, eight per unit. Instead of the access walkways so typical of container architecture, the architects implemented the Dutch layout principle of a double front door with a steep stairway upwards. In compliance with requirements, the single rooms are very small, with a floor space of only five square metres and a width of 1.80 metres. Wide hallways were favoured over common rooms next to the kitchen. Experience has shown that residents prefer to retire or go out into the open. The architecture ensures a minimum of privacy within a confined space.
The asylum centre has been designated as a camp for the next thirty years. At the tender stage the building contractors had to commit themselves as operators of the site, a special circumstance that had a positive effect on the selection of materials and construction standard: durable brick façades in various designs, a zero energy house standard with solar panels and efficient thermal insulation. The isolated location outside the village of Ter Apel is hardly conducive to subsequent uses, nor are such uses intended. According to the architects, other refugee centres with more rural house typologies are considered by many to look more like holiday camps, and that is not politically viable in the Netherlands.
Text: Doris Kleilein
aus: Stadtbauwelt48.2015





