FLÜCHTLINGSUNTERKÜNFTE, FREIBURG
Als Antwort auf dem Bedarf nach schnell realisierbarem Wohnungsbau für die Flüchtlingskrise wurden vorgefertigte Raummodule aus Holz gewählt.
Status | Art der Bewohner |
Anzahl der Bewohner | Baukosten (Euro/m²) |
Bauverfahren | Bauverfahren (Detail) |
Land | Wohnfläche pro Person (m²/Person) |
Architekt | Auftraggeber |
Ausführende Firma |
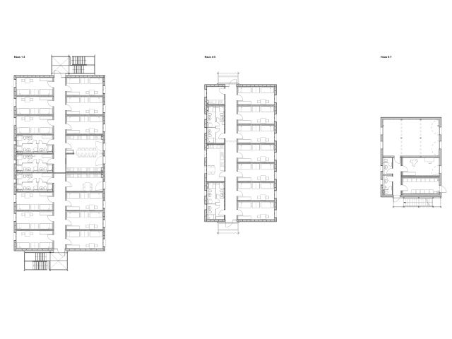
Innerhalb kürzester Zeit sollen im Auftrag der Stadt Freiburg an drei Standorten temporäre Notunterkünfte für Geflüchtete entstehen. ARGE Architekten Freiburg entwickeln als nachhaltige Alternative zum etablierten Stahlcontainerbau ein modulares System in Holzmassivbauweise. Unbehandelte Werkstoffe, flexible Nachnutzung und die Förderung einer regionalen Wertschöpfungskette fördern die Akzeptanz des Wohnheims bei Bewohnern und Bevölkerung.
(Auszug Erläuterungsbericht)






