FLÜCHTLINGSWOHNPROJEKT IN MASSIVBAU, HANNOVER
Die Flüchtlingsunterkunft befindet sich mitten in einem neu realisierten Stadtquartier. Die Einheiten können ohne große bauliche Eingriffe in Mietwohnungen umgewandelt werden.
Status | Art der Bewohner |
Anzahl der Bewohner | Moduleinheiten |
Baukosten (Euro/m²) | Bauverfahren |
Bauverfahren (Detail) | Land |
Wohnfläche pro Person (m²/Person) | Architekt |
Auftraggeber | Ausführende Firma |
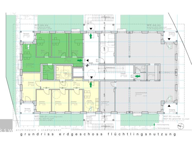
Auf den Flächen des ehemaligen Güterbahnhofs wurde nach dem städtebaulichen Wettbewerbsentwurf von KSW Architekten sukzessive ein neues Stadtquartier realisiert. Und mittendrin ist jetzt das Flüchtlingswohnprojekt entstanden: ein viergeschossiger weißer Bau mit Flugdachelementen, im Inneren als 4-Spänner, mit Einheiten für Wohngruppen von jeweils 4 bis 5 Personen und Betreuungseinrichtungen im Erdgeschoß sowie einer Gewerbeeinheit.
Die Planung beinhaltet bereits jetzt die langfristige Umwandlung der Einheiten zu Mietwohnungen mit dann 6 Wohnungen pro Geschoss. Die zunächst notwendigen außenliegenden Fluchttreppen werden dann abgebaut. Die baulichen Eingriffe können auf diese Weise auf ein Minimum reduziert werden.
Alle Geschosse sind barrierefrei zugänglich und können jeweils eine behindertengerechte Wohnung beherbergen.
(Auszug Erläuterungsbericht)



