Unterkunft für Flüchtlinge, Bad Krozingen
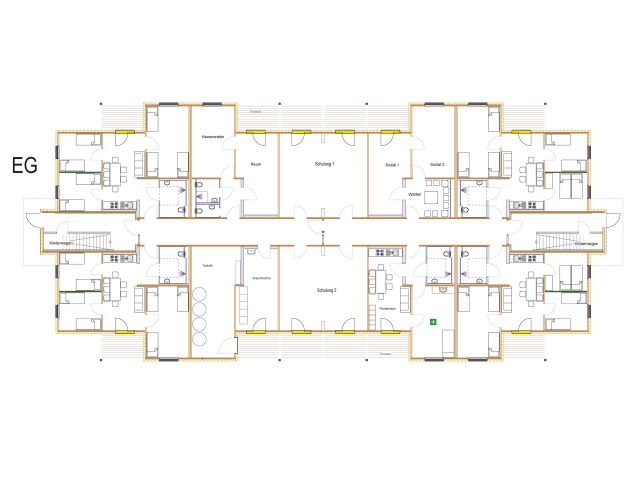
In dem Gebäude sollen 20 Wohneinheiten entstehen, davon 4 barrierefrei, die jeweils über eine große Wohnküche und einen Balkon verfügen. Im EG befinden sich ein Erste-Hilfe/Untersuchungsraum, sowie Schulungs- und Allzweckräume.
Status | Art der Bewohner |
Anzahl der Bewohner | Moduleinheiten |
Baukosten (Euro/m²) | Bauverfahren |
Bauverfahren (Detail) | Land |
Wohnfläche pro Person (m²/Person) | Architekt |
Auftraggeber | Ausführende Firma |
In Bad Krozingen – südlich von Freiburg – entsteht in Kürze ein Unterbringungsgebäude für Flüchtlinge. Das 3-geschossige Gebäude umfasst 20 Wohneinheiten für jeweils 4 bis 8 Personen und ist über 2 innenliegende Treppenhäuser zugängig.Jede Wohneinheit beinhaltet eine 19 m² große Wohnküche sowie einen Balkon mit einer Fläche von6,5 m². Es sind Wohneinheiten mit 2 sowie mit 3 Schlafräumen geplant. Die 4 Wohneinheiten im EG sind barrierefrei. Im EG des Gebäudes befinden sich außerdem 2 große Schulungs-, bzw. Allzweckräume mit jeweils 47 m². Zusätzlich sind im EG 1 Hausmeisterraum, 2 Sozialarbeiterräume, ein Erste-Hilfe-/Untersuchungsraum mit Wartezimmer, 1 Pausenraum für die Angestellten, die Waschküche sowie zwei Unterstellflächen für ca. 8 Kinderwagen vorhanden. Für die 16 Wohneinheiten im OG und DG steht pro Wohneinheit zusätzlich zu dem Badezimmer ein zweites WC zur Verfügung. Ebenso gehören zum OG und DG je 4 Abstellräume mit 8,5 m². TV Anschlüsse sind in jeder Einheit und WLAN im Gebäude vorhanden. Das Brandschutzkonzept ist erstellt, eine Brandschutzanlage wird eingebaut.
(Auszug Erläuterungsbericht)



